68 Mountain Drive

Listing Provided by Keller Williams - Great Smokies
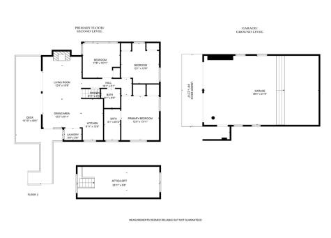
Updated 3BR/2BA cabin with 22 KW Generac generator, paved access, ample parking, and an oversized 2-car basement garage. The main level features an open-concept living area with vaulted ceilings, soaring windows, and a stone gas fireplace. The eat-in kitchen offers generous cabinet and counter space, while the spacious primary suite includes an ensuite bath. Two additional bedrooms and a full bath complete the main level, and a versatile loft provides the perfect spot for an office, playroom, or extra sleeping area. Step outside to the large deck with mountain views and a retractable electric awning. The full basement includes a heated 2-car garage, two hot water heaters, a water purification system, and space ideal for a game room, hobbies, or storage. With a low-maintenance yard, move-in-ready condition, and a prime location just 5 minutes from downtown Robbinsville-and centrally located to all the area's most popular outdoor attractions-this property would be an excellent vacation rental or mountain getaway!

Listing Tools

Property Details of 68 Mountain Drive

Property Details

Map Location

 "Based on information submitted to NC_MLBR as of November 14, 2025 3:42 AM EST . All data is deemed reliable but is not guaranteed accurate by the MLS. All information should be independently reviewed and verified for accuracy. IDX information is provided exclusively for consumers’ personal, noncommercial use and may not be used for any purpose other than to identify prospective properties consumers may be interested in purchasing."

Hi there! How can we help you?

Contact us using the form below or give us a call.

Send Us A Message:

I agree to receive marketing and customer service calls and text messages from The Mountain Life Real Estate Team. To opt out, you can reply 'stop' at any time or click the unsubscribe link in the emails. Consent is not a condition of purchase. Msg/data rates may apply. Msg frequency varies. Privacy Policy.

Do not fill in this field:

This site is protected by reCAPTCHA and the Google Privacy Policy and Terms of Service apply.